Search
Prev
Next
Residential

340 104th st, Stone Harbor

$11,750,000

Property Details Property Details
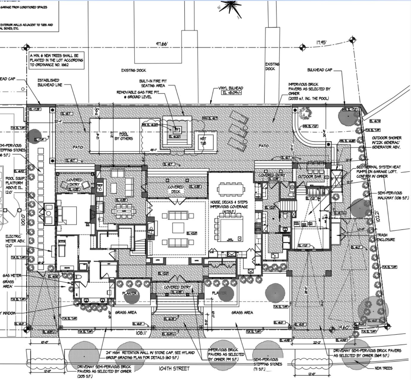
This exceptional bayfront opportunity offers a rare chance to create a signature coastal estate on an expansive 12,182 sq. ft. lot in the highly coveted Stone Harbor basin. Perfectly positioned along a wide, navigable waterway, this premier homesite delivers breathtaking sunset views, tranquil bayfront living, and immediate access to open wateran ideal setting for boating enthusiasts and those seeking the ultimate shore lifestyle. Architectural plans by renowned designer Blaine Steinman have been thoughtfully created specifically for this property, envisioning a stunning new construction residence of approximately 5,300+ square feet of conditioned living space, complemented by expansive decks and outdoor living areas. The plans reflect a sophisticated coastal design, maximizing water views while seamlessly blending indoor and outdoor spaces for entertaining and relaxation. The proposed design showcases a multi-level luxury home elevated to meet modern flood standards, featuring generous living areas, multiple fireplaces, a gourmet kitchen with oversized island, and walls of glass that capture the beauty of the bay. The layout includes spacious bedrooms, en-suite baths, and flexible living spaces ideal for hosting family and guests. Covered decks and open-air terraces provide the perfect vantage points for enjoying coastal breezes and panoramic sunsets. The outdoor concept is equally impressive, with plans allowing for a resort-style backyard retreat complete with a pool, hot tub, outdoor bar, fire pit seating area, and multiple patio spaces. The property also includes an existing bulkhead and dock infrastructure, offering immediate access for boating, kayaking, and water sports. Thoughtful site planning incorporates lush landscaping, green space, and privacy elements, creating a serene waterfront oasis. Additional highlights from the plans include a covered entry, ample parking, a garage, and modern mechanical systems such as a geothermal heating and cooling design, providing energy efficiency and long-term sustainability. The design also allows for an outdoor shower, generator, and elevated mechanicals, ensuring both comfort and resilience in a coastal environment. For those with a personal vision, this oversized lot provides the flexibility to customize or design an entirely new residence tailored to your preferences. Whether you choose to utilize the existing architectural plans or collaborate with your own architect and builder, the possibilities here are truly exceptional. Location is everything, and this property delivers. Situated just a short walk to Stone Harbors vibrant downtown, youll enjoy easy access to renowned restaurants, boutique shopping, and the charm that makes this seaside community one of the most desirable on the Jersey Shore. Pristine beaches are also just moments away, offering the perfect balance of bayfront tranquility and oceanfront enjoyment. Opportunities like this are increasingly rarea large bayfront parcel with approved design direction, substantial water frontage, and proximity to town. Whether you are an end user looking to build your dream home or an investor seeking a premier development opportunity, this offering represents a unique and compelling investment in one of the shores most prestigious locations. Create your legacy bayfront home and experience the very best of Stone Harbor living.

This listing is provided courtesy of BERKSHIRE HATHAWAY HS FOX & ROACH - AV


Bedroom 6 bedrooms
Full Bathroom 5 full baths
Half Baths 2 half baths

  • MLS #: 260869
  • Status: Active
  • Address: 340 104th st, Stone Harbor, NJ 08247
  • Date Listed: 4/3/2026
  • Days on Market: 0
  • SQFT: 5500
  • Stipulations: No

Interior Features Interior Features
  • Cool System: Central Air Condition
  • Heat System: Gas Natural
  • Hot Water: Gas- Natural

Exterior Features Exterior Features
  • Siding: Two Story
  • New Construction: No

Additional Features Additional Features
  • Property Type: Single Family
  • Water/Sewer: City
  • Year Built: 2026
  • Lot Size: 124
  • Lot Number: 535,536
  • Block Number: 200.03
  • Associated Document Count: 0
  • District/Township: 10-Stone Harbor
  • For Sale / Lease: For Sale
  • Taxes: 25217
  • Total Rooms: 1
  • 3rd Party Approval: No

Disclaimer:The data relating to real estate for sale on this website comes in part from both the Broker Reciprocity Program of the South Jersey Shore Regional MLS and/or the Cape May County MLS, a voluntary cooperative exchange of property listing data between licensed real estate brokerage firms. The brokers providing these listings advise interested parties to do their due diligence before relying on this information in a purchase decision. The information being provided is for the consumer's personal, non-commercial use and may not be used for any purpose other than to identify prospective properties in which they may be interested in purchasing. All information deemed reliable, but not guaranteed. All properties are subject to change.