Residential

722 Pearl Pl, Atlantic City

$182,500

Property Details Property Details
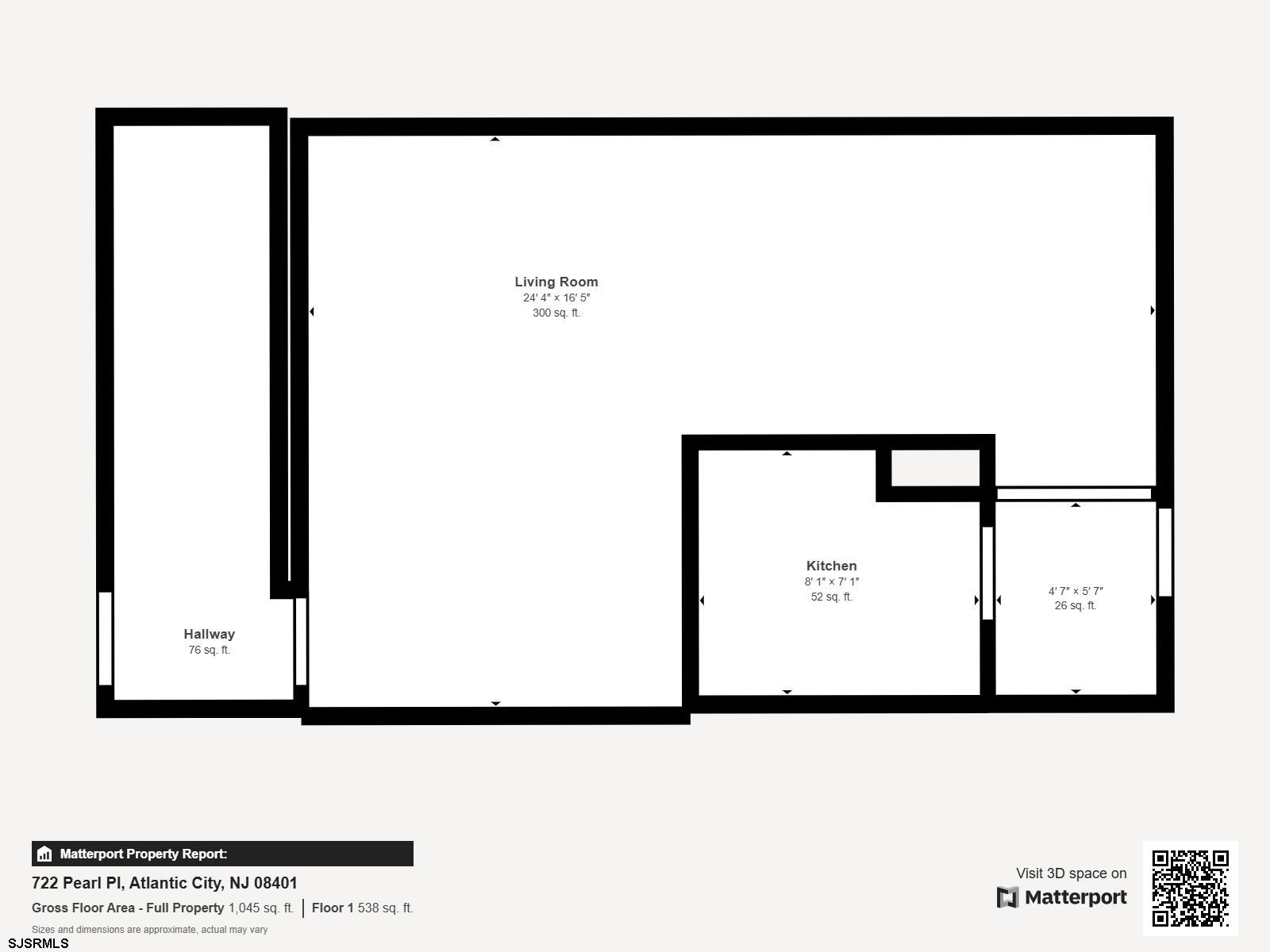
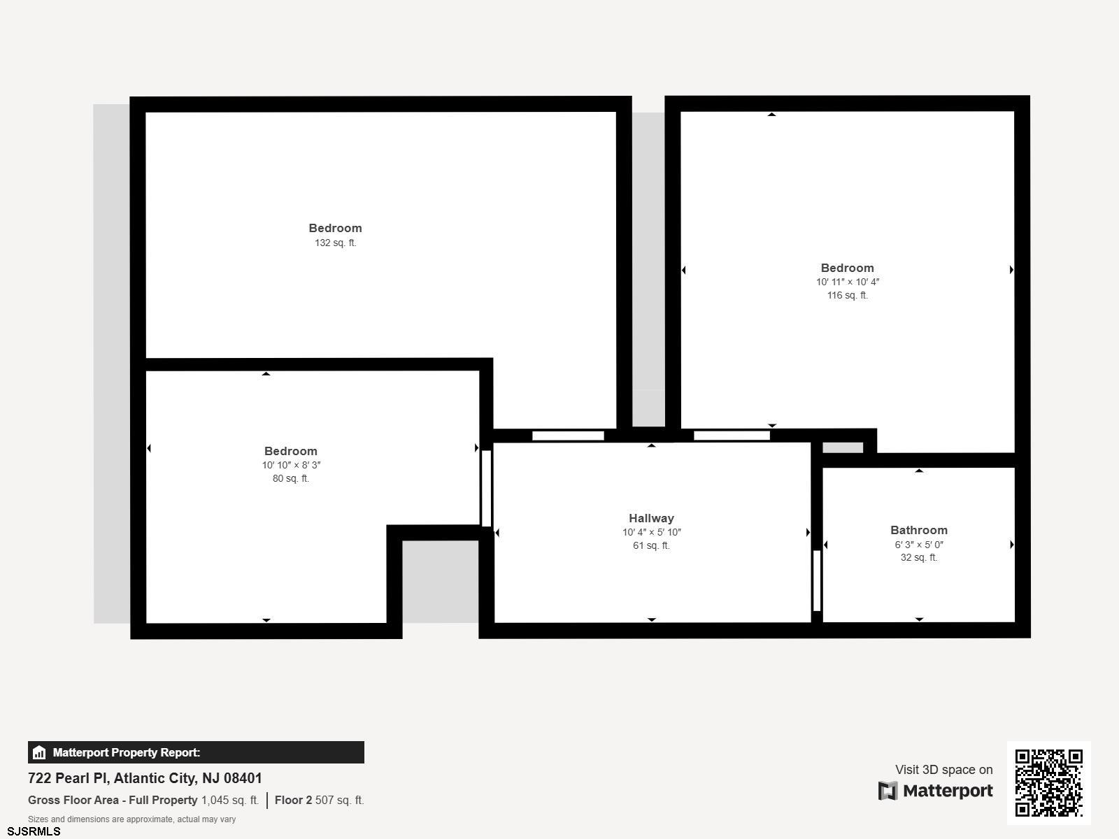
Welcome to 722 Pearl Place- a beautifully renovated 3-bedroom, 1-bath home offering modern living in a compact and efficient footprint. Tucked away on a private lot nestled between neighboring homes, this hidden gem delivers surprising comfort and thoughtful design in every square foot. Inside you'll find a bright and airy interior featuring brand-new finishes throughout- from sleek flooring and fresh paint to a completely updated kitchen and bath. The layout maximizes space while maintaining a cozy, livable feel. Whether you're seeking a starter home, a smart investment, or a stylish beach retreat, this turnkey property checks all the boxes. virtual tour: https://my.matterport.com/show/?m=NC2EYvVFYDm

This listing is provided courtesy of KELLER WILLIAMS REALTY ATLANTIC SHORE-Northfield


Bedroom 3 bedrooms
Bathroom 1 baths

  • MLS #: 597832
  • Status: Sold
  • Address: 722 Pearl Pl, Atlantic City, NJ 08401
  • Date Listed: 7/1/2025
  • Days on Market: 289
  • Date Sold: 3/18/2026

Amenities Amenities
  • Dishwasher
  • Gas Stove
  • Refrigerator

Location Location

Interior Features Interior Features
  • Cool System: Central
  • Heat System: Forced Air
  • Floors: Vinyl Plank

Exterior Features Exterior Features
  • Parking: None
  • New Construction: No

Additional Features Additional Features
  • County: Atlantic
  • Property Type: Single Family
  • Waterfront Features: No
  • Water/Sewer: Public
  • Lot Number: 21
  • Block Number: 434
  • For Sale / Lease: For Sale
  • Taxes: 1397
  • 3rd Party Approval: No

Disclaimer:The data relating to real estate for sale on this website comes in part from both the Broker Reciprocity Program of the South Jersey Shore Regional MLS and/or the Cape May County MLS, a voluntary cooperative exchange of property listing data between licensed real estate brokerage firms. The brokers providing these listings advise interested parties to do their due diligence before relying on this information in a purchase decision. The information being provided is for the consumer's personal, non-commercial use and may not be used for any purpose other than to identify prospective properties in which they may be interested in purchasing. All information deemed reliable, but not guaranteed. All properties are subject to change.