Land

1223 Shore, Brigantine

$1,299,000

Property Details Property Details
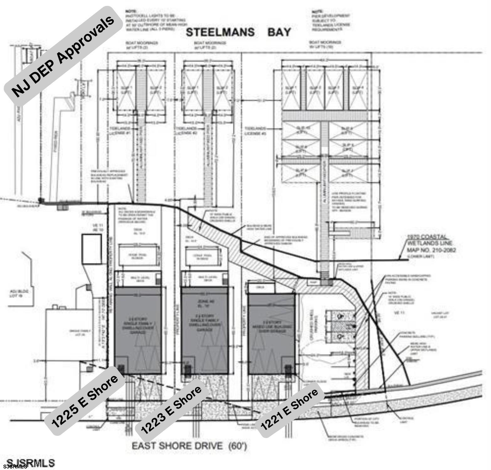
Ready to build your dream home on the water ? Steelman's Point Lot 2 is now available for purchase ! A premier waterfront canvas awaiting your custom masterpiece. Nestled in a highly sought-after Brigantine location, this spectacular buildable lot offers breathtaking, unobstructed views of the pristine 48,000 acre Edwin B. Forsythe Wildlife Refuge, New Jersey's largest coastal wildlife refuge. Creating spectacular views and protected non developable land. The property elevation also has been raised up to 8 ft with new 10 ft elevation commercial bulkhead exceeding state and municipality minimums. Municipal Zoning allows for a higher elevation threshold, providing unparalleled vantage points, 360 degree views to take in spectacular sunrises, vibrant sunsets, Brigantine Golf Links and striking views of the Atlantic City skyline right from your future dream home. Boasting generous, dimensions of 144 x 133 x 50, this property provides ample space to design the ultimate luxury coastal retreat. Buyers have the exclusive opportunity to partner with the renowned Burns and Klemm Builders or bring your own builder. You can choose from one of their existing models to streamline the process, or collaborate with their team to create a completely custom-designed masterpiece tailored to your exact specifications. Tailor your waterfront experience to your exact boating needs! NJ DEP APPROVED for 100' Pier with (2) 13k lb boat lifts. Don't miss this exceptionally rare opportunity to secure a premier piece of Brigantine's waterfront paradise. Walk the lot today and start planning your coastal legacy. Price is for land only. Adjacent lots also available. All images are for reference only and not to scale. Some images may have been digitally altered to show potential. Call today to walk property and meet our team. Michael Riordan 609.339.6004 KW Atlantic Shore/ Shore Luxury Team

This listing is provided courtesy of KELLER WILLIAMS REALTY ATLANTIC SHORE-BRIGANTINE


Bedroom bedrooms

  • MLS #: 606988
  • Status: Active
  • Address: 1223 Shore, Brigantine, NJ 08203
  • Date Listed: 4/21/2026
  • Days on Market: 1

Location Location

Additional Features Additional Features
  • County: Atlantic
  • Property Type: 1 to 6,000 SQFT
  • Waterfront Features: Yes
  • Lot Number: 22
  • Block Number: 5803
  • For Sale / Lease: For Sale
  • Taxes: 0
  • 3rd Party Approval: No

Disclaimer:The data relating to real estate for sale on this website comes in part from both the Broker Reciprocity Program of the South Jersey Shore Regional MLS and/or the Cape May County MLS, a voluntary cooperative exchange of property listing data between licensed real estate brokerage firms. The brokers providing these listings advise interested parties to do their due diligence before relying on this information in a purchase decision. The information being provided is for the consumer's personal, non-commercial use and may not be used for any purpose other than to identify prospective properties in which they may be interested in purchasing. All information deemed reliable, but not guaranteed. All properties are subject to change.